2-кімнатна квартира в ЖК Krona House
Загальний опис пропозиції
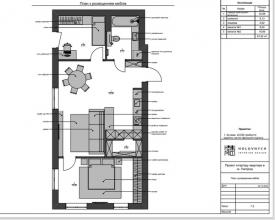
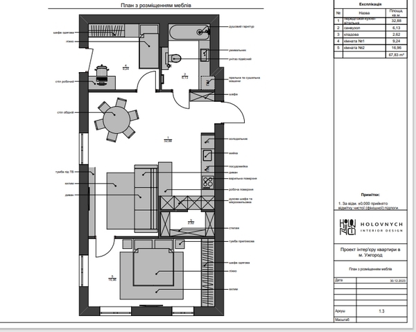
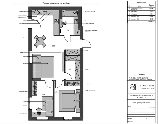
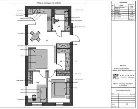
Новий комфортний ЖК з панорамними вікнами, закритою територією та внутрішнім парком в районі, який має розвинену інфраструктуру з сучасною архітектурою. Квартира на п'ятому поверсі де'ятиповерхового цегляного будинку з ліфтом, площею 67 м кв. вільного планування. Квартира продається в чорновому стані, оснащена бойлером та електрокотлом. Поруч все необхідне: магазини, дитячі садки, школи, спортивні та культурні центри.
Характеристики об'єкту
Кількість кімнат: 2
Тип будинку, проект: новобудова
Район області: Ужгородський
Населений пункт: Ужгород
Район: Новий
Вулиця: Богомольця
Орієнтир місця розташування: ТЦ "Токіо"
Поверх / Поверхів: 5 / 9
Загальна площа, кв.м.: 67.6
Ціна за кв.м: 43177.4
Вода: центральна
Каналізація: центральна
Загальний стан: після будівництва
Балкони: 1
Дивіться також
Квартира в сучасному комплексі "Park Land"
переглядів: 361
Кількість кімнат: 2
Район області: Ужгородський
Населений пункт: Ужгород
Вулиця: Легоцького
Загальна площа, кв.м.: 67
Ціна за кв.м: 94596.8
Видова квартира в мкрн Боздош
переглядів: 521
Кількість кімнат: 3
Район області: Ужгородський
Населений пункт: Ужгород
Вулиця: Лінтура
Загальна площа, кв.м.: 130
Ціна за кв.м: 48112.3
Дворівневий напівособняк в центральній частині міста
переглядів: 1071
Кількість кімнат: 3
Район області: Ужгородський
Населений пункт: Ужгород
Вулиця: Степана Добоша (Олександра Пархоменка)
Загальна площа, кв.м.: 60
Ціна за кв.м: 72970.1

